HOME
Restauri
Ambiente
Residenziale
Architetture varie
Sicurezza nei cantieri
Rimozione amianto
Tecnologie
DETTAGLI
CHI SIAMO
CONTATTI
Studio Petitti
studio tecnico di architettura
2010-2012
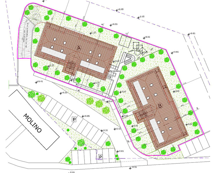
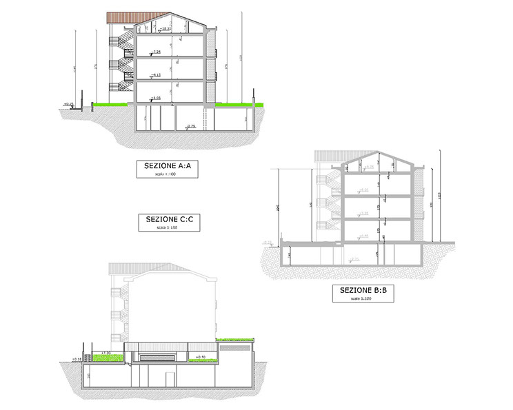
Complesso Residenziale
Candiolo (TO)
Realizzazione di complesso residenziale con 18 u.i e 24 autorimesse
- rif. petitti.it/curriculum C2-