Home
Lavori
Restauri
Residenziale
Architetture varie
Sicurezza nei cantieri
Rimozione amianto
Tecnologie
Dettagli
Chi siamo
Contatti
<
>
2018
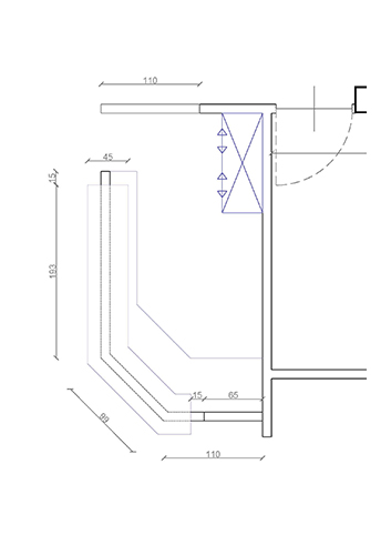
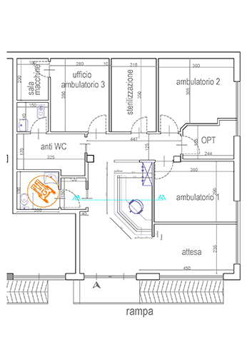
Realizzazione studio dentistico
Candiolo (TO)
Recupero di locali commerciali dismessi a Candiolo e conversione a studio medico dentistico
- rif. petitti.it/curriculum B18 -
StudioPetitti
studio tecnico di architettura
SEDE
Piazza Sella, 7
10060 Candiolo (TO)
CONTATTI
+39 011 9625866
studio@petitti.it
p.petitti@architettitorinopec.it
P. I.: 10435290019