2016
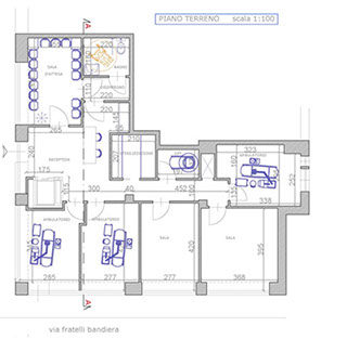
Recupero locali commerciali
Beinasco (TO)
Recupero locali commerciali dismessi e conversione a studio medico dentistico
- rif. petitti.it/curriculum B16-
HOME
Restauri
Residenziale
Architetture varie
Sicurezza nei cantieri
Rimozione amianto
Tecnologie
DETTAGLI
CHI SIAMO
CONTATTI